Sommeraktion -5,13% um € 388.000,-
statt € 409.000,- einziehen!
Funktionell designte Grundrisse auf 30 bis 74 m², eine maßgeschneiderte Ausstattung mit getrenntem Wohn-, Schlaf- und Arbeitsbereich. Das sorgt für eine besondere Wohlfühl-Atmosphäre.
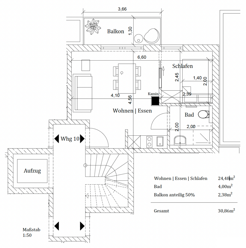
Die hier angebotene Wohnung befindet sich im 1. Obergeschoß mit 1 Balkon und ist mit einem Lift direkt von der Tiefgarage nach oben erreichbar.
Das Mehrfamilienhaus befindet sich schön im Grünen eingewachsen in einer ruhigen Lage mit Wertsteigerungspotential in den kommenden Jahren durch weitere Neubauprojekte in dieser Gegend. München-Untermenzing ist gut an den öffentlichen Nahverkehr mit Bus und S-Bahn Allach / Untermenzing angebunden. Einkaufsmöglichkeiten finden erreichbar in mittelbarer Nähe. Bäckerei/Metzger, kleines Café und das neue Schulzentrum sind fussläufig erreichbar. Wiesen und Felder in der direkten Umgebung laden zum Spazierengehen ein.
| Wohnen - Essen - Schlafen 24,48 m² |
| Bad 4,00 m² |
| Balkon anteilig 50% 2,38 m² |
