Funktionell designte Grundrisse auf 30 bis 74 m², eine maßgeschneiderte Ausstattung mit getrenntem Wohn-, Schlaf- und Arbeitsbereich. Das sorgt für eine besondere Wohlfühl-Atmosphäre.
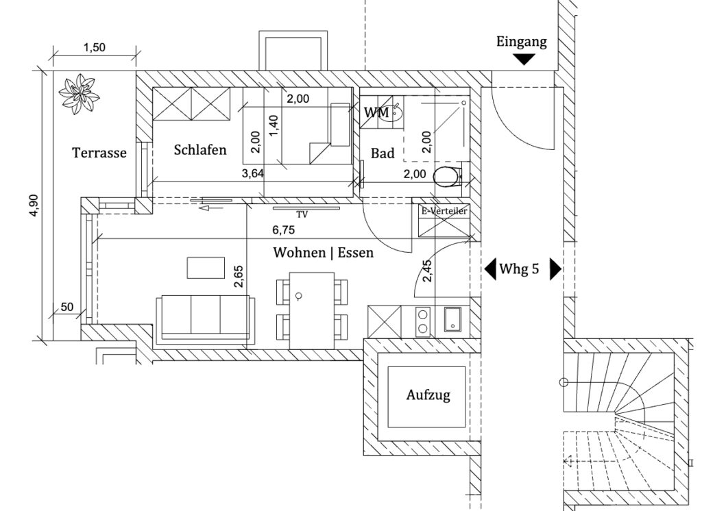
Die hier angebotene Wohnung befindet sich im Erdgeschoß mit einem Terrassenanteil von 50%.
Das Mehrfamilienhaus befindet sich schön im Grünen eingewachsen in einer ruhigen Lage mit Wertsteigerungspotential in den kommenden Jahren durch weitere Neubauprojekte in dieser Gegend. München-Untermenzing ist gut an den öffentlichen Nahverkehr mit Bus und S-Bahn Allach / Untermenzing angebunden. Einkaufsmöglichkeiten finden erreichbar in mittelbarer Nähe. Bäckerei/Metzger, kleines Café und das neue Schulzentrum sind fussläufig erreichbar. Wiesen und Felder in der direkten Umgebung laden zum Spazierengehen ein.
| Wohnen - Essen - Schlafen 24,90 m² |
| Bad 4,00 m² |
| Terrasse anteilig 50% 2,38 m² |
